Продается производственная база

ул Промышленная, д. 15

42 000 000 руб.

?

$ 1 086

€ 979

59 744 руб./м²


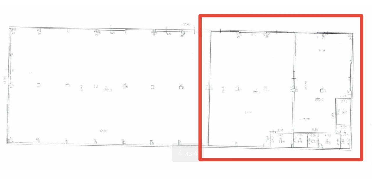
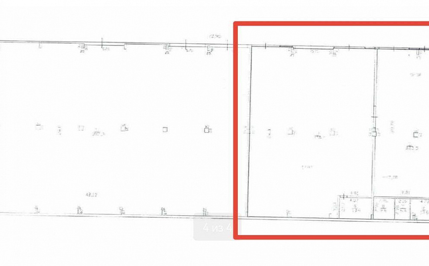
703 м²

1/1 этажей

Код объекта

117740

Предложение доступно для субагентов, авторизуйтесь

Продается производственная база

Код объекта: 117740.
Тип объекта: Производственное помещение.
Площадь: 703 м².
Этаж / Этажность: 1 / 1.
Назначения: Автосервис.

Описание и характеристики

Характеристики:
- Теплый склад
- Доступ 24/7

Дополнительная информация:
Продается производственный бокс 24м глубина*30м ширина
Отличная локация Стройбаза
Удобные подъездные пути с первой линии
Высота потолка 8м
Подсобные помещения в боксе
Централизованное водоснабжение канализация
Мокрая точка в помещении
Отопление газ
Земля в собственности 15 соток
Кран балка 3,2т
Две ямы
Бетонированная площадка перед боксом 30м*25м
На территории имеется столовая
Помощь в оформлении кредита по лучшим ставкам
Полное сопровождение сделки
APP0

По всем вопросам можете обращаться к представителю собственника: Елена Х (741), Венера Ш (742)

Перейти в карточку объекта в CRM: 117740.

Миляуша

+7 927 044-09-47

или оставьте ваш номер, и я перезвоню в течение 30 минут

Отправляя заявку вы соглашаетесь на обработку персональных данных

42 000 000 руб.

?

$ 547 218

€ 465 202

59 744 руб./м²


703 м²

1/1 этажей

Код объекта

117740

Предложение доступно для субагентов, авторизуйтесь

Миляуша

+7 927 044-09-47

или оставьте ваш номер, и я перезвоню в течение 30 минут

Отправляя заявку вы соглашаетесь на обработку персональных данных

Похожие объявления

Посмотреть все похожие объявления
1/14
Код объекта: 251968.
Тип объекта: Производственное помещение.
Площадь: 436 м².
Этаж / Этажность: 1 / 1.
1/12
Код объекта: 259223.
Тип объекта: Производственное помещение.
Площадь: 618 м².
Этаж / Этажность: 1 / 2.
1/15
Код объекта: 268296.
Тип объекта: Производственное помещение.
Площадь: 1300 м².
Этаж / Этажность: 1 / 1.
1/17
Код объекта: 243083.
Тип объекта: Производственное помещение.
Площадь: 60000 .
Этаж / Этажность: 1 / 1.
1/10
Код объекта: 224737.
Тип объекта: Производственное помещение.
Площадь: 1150 м².
Этаж / Этажность: 1 / 2.
1/12
Код объекта: 259223.
Тип объекта: Производственное помещение.
Площадь: 618 м².
Этаж / Этажность: 1 / 2.
1/38
Код объекта: 307317.
Тип объекта: Производственное помещение.
Площадь: 700 м².
Этаж / Этажность: 1 / 1.
1/16
Код объекта: 334915.
Тип объекта: Производственное помещение.
Площадь: 674 м².
Этаж / Этажность: 1 / 1.
1/9
Код объекта: 354449.
Тип объекта: Производственное помещение.
Площадь: 659 м².
Этаж / Этажность: 1 / 1.
1/11
Код объекта: 371858.
Тип объекта: Производственное помещение.
Площадь: 902.3 м².
Этаж / Этажность: 1 / 1.
1/5
Код объекта: 22140.
Тип объекта: Помещение свободного назначения.
Площадь: 1964 м².
Этаж / Этажность: 1 / 1.
1/8
Код объекта: 22498.
Тип объекта: Помещение свободного назначения.
Площадь: 1166 м².
Этаж / Этажность: 2 / 3.
1/31
Код объекта: 40185.
Тип объекта: Помещение свободного назначения.
Площадь: 16000 м².
Этаж / Этажность: 1 / 2.
1/5
Код объекта: 204341.
Тип объекта: Помещение свободного назначения.
Площадь: 400 м².
Этаж / Этажность: 1 / 2.
1/23
Код объекта: 209675.
Тип объекта: Помещение свободного назначения.
Площадь: 151 м².
Этаж / Этажность: 1 / 18.

Не хочу искать, перезвоните мне!

Оставьте номер телефона, наш специалист свяжется с вами и поможет с подбором недвижимости!