Продаётся производственный бокс

пр-кт КАМАЗа, д. 93

90 000 000 руб.

?

$ 1 086

€ 979

78 125 руб./м²


1152 м²

1/1 этажей

Код объекта

123774

Предложение доступно для субагентов, авторизуйтесь

Продаётся производственный бокс

Код объекта: 123774.
Тип объекта: Производственное помещение.
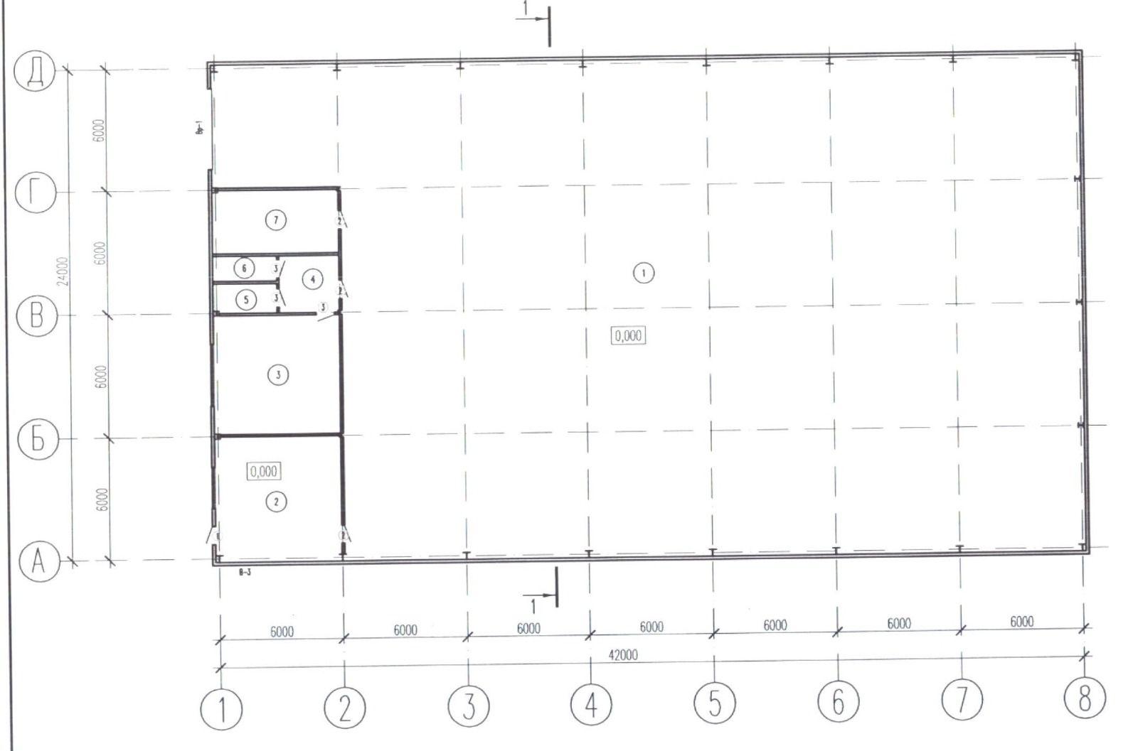
Площадь: 1152 м².
Этаж / Этажность: 1 / 1.
Назначения: Производство, Склад.

Описание и характеристики

Характеристики:
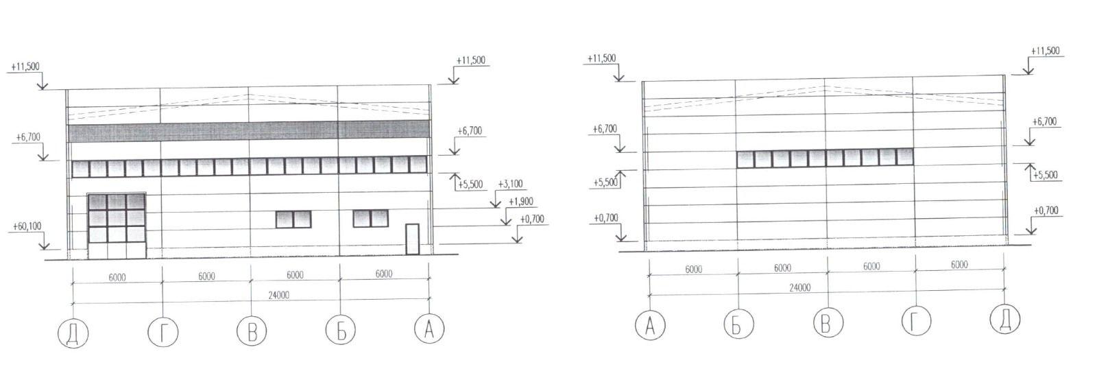
- Теплый склад
- Доступ 24/7
- ХВС/ГВС
- Свой санузел
- Центральное отопление
- Высота потолков 10 м
- Высота ворот 4 м
- Напольное покрытие - Антипыль
- Максимальная мощность 400 кВт
- Подъездные пути под грузовой транспорт, легковой транспорт
- Дополнительные преимущества: Площадка рядом с помещением, Место для маневра транспорта
- Видеонаблюдение

Дополнительная информация:
В продаже производственно складской бокс. Площадь 1100м2 .Расположен на земельном участке 7855м.Что в дальнейшем позволит ещё строить под производство или склады.Земельный участок в аренде на 49лет,сам бокс в собственности. Отопление,вода,канализация центральные. Отличные подьездные пути.Продажа от ООО или как вариант от ИП.
АРР1

По всем вопросам можете обращаться к представителю собственника: Андрей М (740), Елена Х (741)

Перейти в карточку объекта в CRM: 123774.

Миляуша

+7 927 044-09-47

или оставьте ваш номер, и я перезвоню в течение 30 минут

Отправляя заявку вы соглашаетесь на обработку персональных данных

90 000 000 руб.

?

$ 1 156 319

€ 994 073

78 125 руб./м²


1152 м²

1/1 этажей

Код объекта

123774

Предложение доступно для субагентов, авторизуйтесь

Миляуша

+7 927 044-09-47

или оставьте ваш номер, и я перезвоню в течение 30 минут

Отправляя заявку вы соглашаетесь на обработку персональных данных

Похожие объявления

Посмотреть все похожие объявления
1/16
Код объекта: 334915.
Тип объекта: Производственное помещение.
Площадь: 674 м².
Этаж / Этажность: 1 / 1.
1/18
Код объекта: 349560.
Тип объекта: Производственное помещение.
Площадь: 10330 м².
Этаж / Этажность: 1 / 2.
1/35
Код объекта: 237212.
Тип объекта: Производственное помещение.
Площадь: 13000 м².
Этаж / Этажность: 1 / 1.
1/16
Код объекта: 405521.
Тип объекта: Производственное помещение.
Площадь: 1487 м².
Этаж / Этажность: 1 / 1.
1/15
Код объекта: 401819.
Тип объекта: Производственное помещение.
Площадь: 22898 м².
Этаж / Этажность: 1 / 2.
1/10
Код объекта: 224737.
Тип объекта: Производственное помещение.
Площадь: 1150 м².
Этаж / Этажность: 1 / 2.
1/14
Код объекта: 250356.
Тип объекта: Производственное помещение.
Площадь: 1041 м².
Этаж / Этажность: 1 / 1.
1/15
Код объекта: 268296.
Тип объекта: Производственное помещение.
Площадь: 1300 м².
Этаж / Этажность: 1 / 1.
1/16
Код объекта: 405521.
Тип объекта: Производственное помещение.
Площадь: 1487 м².
Этаж / Этажность: 1 / 1.
1/15
Код объекта: 268616.
Тип объекта: Производственное помещение.
Площадь: 936 м².
Этаж / Этажность: 1 / 1.
1/5
Код объекта: 22140.
Тип объекта: Помещение свободного назначения.
Площадь: 1964 м².
Этаж / Этажность: 1 / 1.
1/8
Код объекта: 22498.
Тип объекта: Помещение свободного назначения.
Площадь: 1166 м².
Этаж / Этажность: 2 / 3.
1/31
Код объекта: 40185.
Тип объекта: Помещение свободного назначения.
Площадь: 16000 м².
Этаж / Этажность: 1 / 2.
1/5
Код объекта: 204341.
Тип объекта: Помещение свободного назначения.
Площадь: 400 м².
Этаж / Этажность: 1 / 2.
1/23
Код объекта: 209675.
Тип объекта: Помещение свободного назначения.
Площадь: 151 м².
Этаж / Этажность: 1 / 18.

Не хочу искать, перезвоните мне!

Оставьте номер телефона, наш специалист свяжется с вами и поможет с подбором недвижимости!