Сдается в аренду коммерческое помещение

ул Аделя Кутуя, д. 12

200 000 руб.

?

$ 1 086

€ 979

1 000 руб./м²


200 м²

1/9 этажей

Код объекта

128425

Предложение доступно для субагентов, авторизуйтесь

Сдается в аренду коммерческое помещение

Код объекта: 128425.
Тип объекта: Помещение свободного назначения.
Площадь: 200 м².
Этаж / Этажность: 1 / 9.

Описание и характеристики

Характеристики:
- 2 линия
- Отдельная входная группа
- Общая парковка
- Доступ 24/7
- ХВС/ГВС
- Свой санузел
- Центральное отопление
- Хороший ремонт
- Кабинетная планировка
- Жилой дом
- С мебелью
- С окнами
- Инфраструктура: Магазины
- Коммунальные услуги оплачиваются отдельно

Дополнительная информация:
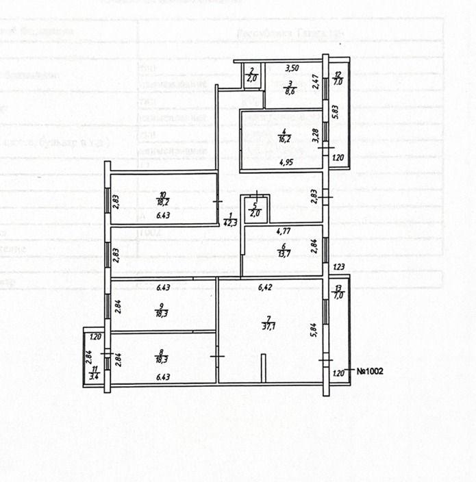
Сдается в аренду помещение свободного назначения, в новом районе, рядом остановки общественного транспорта, удобные подъездные пути, напротив входа в помещение  парковка, отдельный вход, пандусы, помещение с ремонтом, семь кабинетов, две комнаты отдыха, два санузла, два балкона, отличный ремонт, мебель, пожарная, охранная сигнализация, видеонаблюдение, отличное место под офис компании, детский, развивающий центр, медицинский центр
АРР0

По всем вопросам можете обращаться к представителю собственника: Венера Ш (271), Рашитов Н (262)

Перейти в карточку объекта в CRM: 128425.

Миляуша

+7 927 044-09-47

или оставьте ваш номер, и я перезвоню в течение 30 минут

Отправляя заявку вы соглашаетесь на обработку персональных данных

200 000 руб.

?

$ 2 473

€ 2 142

1 000 руб./м²


200 м²

1/9 этажей

Код объекта

128425

Предложение доступно для субагентов, авторизуйтесь

Миляуша

+7 927 044-09-47

или оставьте ваш номер, и я перезвоню в течение 30 минут

Отправляя заявку вы соглашаетесь на обработку персональных данных

Похожие объявления

Посмотреть все похожие объявления
1/21
Код объекта: 254623.
Тип объекта: Помещение свободного назначения.
Площадь: 278 м².
Этаж / Этажность: 3 / 3.
1/8
Код объекта: 229186.
Тип объекта: Помещение свободного назначения.
Площадь: 80 м².
Этаж / Этажность: 1 / 2.
1/11
Код объекта: 350987.
Тип объекта: Помещение свободного назначения.
Площадь: 114.8 м².
Этаж / Этажность: 1 / 16.
1/15
Код объекта: 253075.
Тип объекта: Помещение свободного назначения.
Площадь: 285 м².
Этаж / Этажность: 2 / 2.
1/18
Код объекта: 256470.
Тип объекта: Помещение свободного назначения.
Площадь: 460 м².
Этаж / Этажность: 1 / 1.
1/13
Код объекта: 257133.
Тип объекта: Помещение свободного назначения.
Площадь: 230 м².
Этаж / Этажность: 1 / 1.
1/27
Код объекта: 257957.
Тип объекта: Помещение свободного назначения.
Площадь: 174 м².
Этаж / Этажность: -1 / 9.
1/19
Код объекта: 258497.
Тип объекта: Помещение свободного назначения.
Площадь: 180 м².
Этаж / Этажность: 2 / 2.
1/12
Код объекта: 259224.
Тип объекта: Помещение свободного назначения.
Площадь: 200 м².
Этаж / Этажность: 1 / 2.
1/10
Код объекта: 268068.
Тип объекта: Помещение свободного назначения.
Площадь: 216 м².
Этаж / Этажность: 1 / 1.
1/5
Код объекта: 22140.
Тип объекта: Помещение свободного назначения.
Площадь: 1964 м².
Этаж / Этажность: 1 / 1.
1/8
Код объекта: 22498.
Тип объекта: Помещение свободного назначения.
Площадь: 1166 м².
Этаж / Этажность: 2 / 3.
1/31
Код объекта: 40185.
Тип объекта: Помещение свободного назначения.
Площадь: 16000 м².
Этаж / Этажность: 1 / 2.
1/5
Код объекта: 204341.
Тип объекта: Помещение свободного назначения.
Площадь: 400 м².
Этаж / Этажность: 1 / 2.
1/23
Код объекта: 209675.
Тип объекта: Помещение свободного назначения.
Площадь: 151 м².
Этаж / Этажность: 1 / 18.

Не хочу искать, перезвоните мне!

Оставьте номер телефона, наш специалист свяжется с вами и поможет с подбором недвижимости!