Сдаются помещения свободного назначения

ул Шамиля Усманова, д. 88Б

231 000 руб.

?

$ 1 086

€ 979

2 200 руб./м²


105 м²

1/2 этажей

Код объекта

126591

Предложение доступно для субагентов, авторизуйтесь

Сдаются помещения свободного назначения

Код объекта: 126591.
Тип объекта: Отдельно стоящее здание.
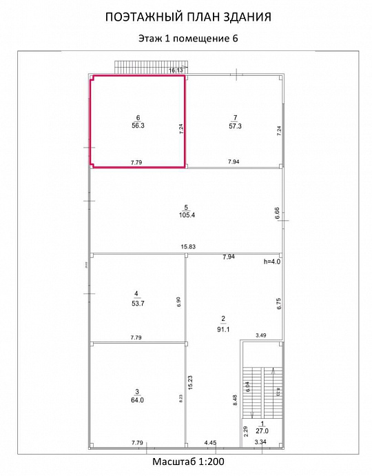
Площадь: 105 м².
Этаж / Этажность: 1 / 2.

Описание и характеристики

Характеристики:
- 1 линия
- Отдельная входная группа
- Общая парковка
- Есть возможность разместить вывеску
- Погрузка/разгрузка: Главный вход, Запасной вход
- Доступ 24/7
- ХВС/ГВС
- Свой санузел
- Центральное отопление
- Предчистовой ремонт
- Отдельно стоящее здание
- Высота потолков 4 м
- С окнами
- Возможность перепланировки

Дополнительная информация:
Сдаются два помещения - 57 кв м (2500) и 106 кв м (2200) в оживленном месте на улице Усманова.
Рядом якорные арендаторы - Пятерочка, Русалка.
АРР1

По всем вопросам можете обращаться к представителю собственника: Рашитов Н (262), Венера Ш (271)

Перейти в карточку объекта в CRM: 126591.

Миляуша

+7 927 044-09-47

или оставьте ваш номер, и я перезвоню в течение 30 минут

Отправляя заявку вы соглашаетесь на обработку персональных данных

231 000 руб.

?

$ 2 852

€ 2 442

2 200 руб./м²


105 м²

1/2 этажей

Код объекта

126591

Предложение доступно для субагентов, авторизуйтесь

Миляуша

+7 927 044-09-47

или оставьте ваш номер, и я перезвоню в течение 30 минут

Отправляя заявку вы соглашаетесь на обработку персональных данных

Похожие объявления

Посмотреть все похожие объявления
1/11
Код объекта: 258979.
Тип объекта: Отдельно стоящее здание.
Площадь: 70 м².
Этаж / Этажность: 1 / 1.
1/25
Код объекта: 376602.
Тип объекта: Отдельно стоящее здание.
Площадь: 157 м².
Этаж / Этажность: 1 / 1.
1/18
Код объекта: 293464.
Тип объекта: Отдельно стоящее здание.
Площадь: 130 м².
Этаж / Этажность: 1 / 2.
1/13
Код объекта: 382388.
Тип объекта: Отдельно стоящее здание.
Площадь: 325 м².
Этаж / Этажность: 2 / 2.
1/9
Код объекта: 305638.
Тип объекта: Отдельно стоящее здание.
Площадь: 800 м².
Этаж / Этажность: 2 / 2.
1/24
Код объекта: 255549.
Тип объекта: Отдельно стоящее здание.
Площадь: 108 м².
Этаж / Этажность: 1 / 1.
1/12
Код объекта: 305795.
Тип объекта: Отдельно стоящее здание.
Площадь: 100 м².
Этаж / Этажность: 1 / 1.
1/18
Код объекта: 293464.
Тип объекта: Отдельно стоящее здание.
Площадь: 130 м².
Этаж / Этажность: 1 / 2.
1/28
Код объекта: 286589.
Тип объекта: Отдельно стоящее здание.
Площадь: 85 м².
Этаж / Этажность: 2 / 2.
1/17
Код объекта: 377480.
Тип объекта: Отдельно стоящее здание.
Площадь: 100 м².
Этаж / Этажность: 2 / 2.
1/5
Код объекта: 22140.
Тип объекта: Помещение свободного назначения.
Площадь: 1964 м².
Этаж / Этажность: 1 / 1.
1/8
Код объекта: 22498.
Тип объекта: Помещение свободного назначения.
Площадь: 1166 м².
Этаж / Этажность: 2 / 3.
1/31
Код объекта: 40185.
Тип объекта: Помещение свободного назначения.
Площадь: 16000 м².
Этаж / Этажность: 1 / 2.
1/5
Код объекта: 204341.
Тип объекта: Помещение свободного назначения.
Площадь: 400 м².
Этаж / Этажность: 1 / 2.
1/23
Код объекта: 209675.
Тип объекта: Помещение свободного назначения.
Площадь: 151 м².
Этаж / Этажность: 1 / 18.

Не хочу искать, перезвоните мне!

Оставьте номер телефона, наш специалист свяжется с вами и поможет с подбором недвижимости!